Proyectos
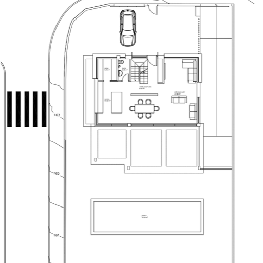
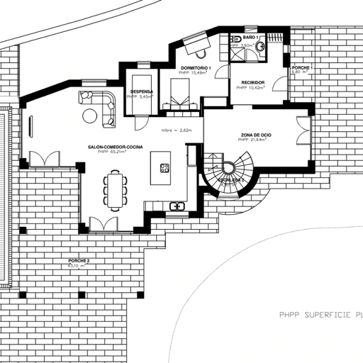
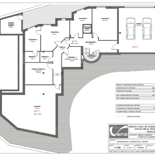
Villa OyU
Vivienda unifamiliar
Urbanización La Cala Golf
2025 (Proyecto finalizado)
Superficie construida: 322m2 más 606m2 souterrain y garaje
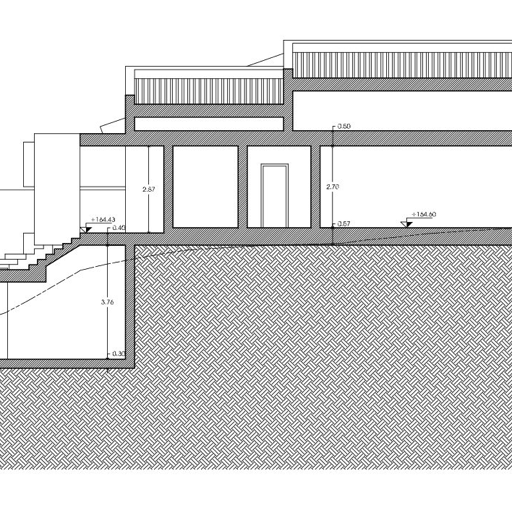
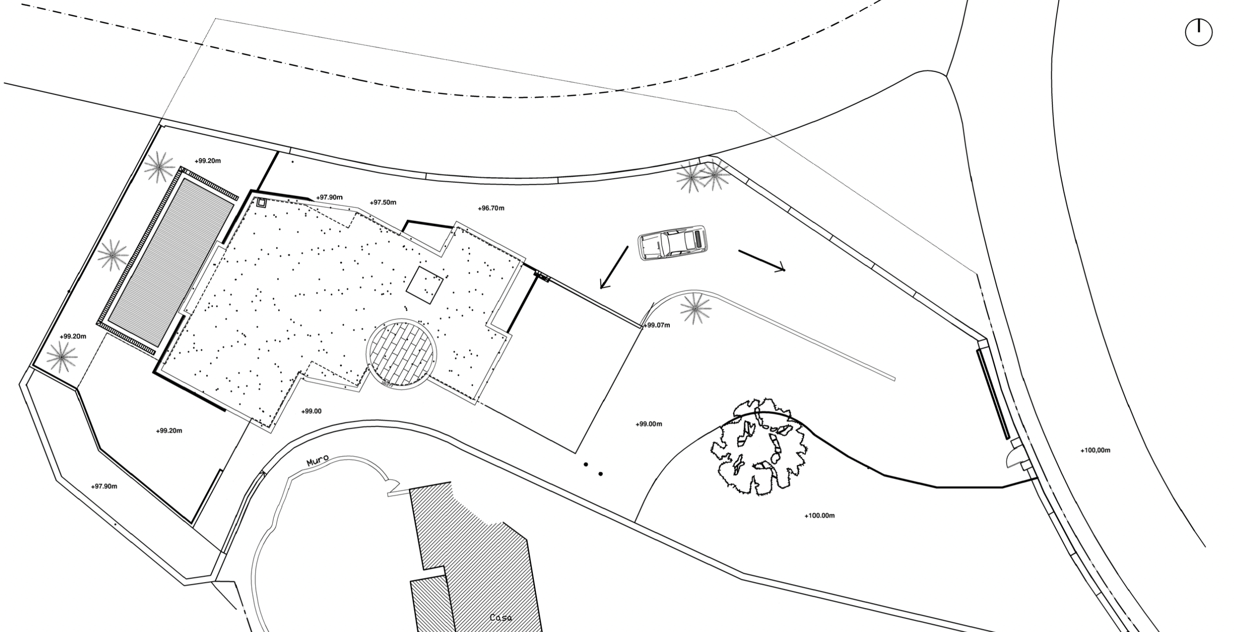
Ubicación: La villa OyU está ubicada en la Urbanización La Cala Golf en una ladera a una altura de 125m por encima del nivel del mar. Tiene maravillosas vistas hacia el campo de golf y a las bonitas montañas alrededor.
La vivienda consta de 4 plantas. Hay 2 plantas principales con extensas terrazas con zona de barbacoa, piscina con playita y zona de bar. Además hay 2 plantas de sótano las cuales conllevan trasteros, cuartos multifuncionales y garaje amplio.
Particularidades:
- Estructura de 4 plantas ( 2 x semisótano y 2 x plantas vivienda).
- Tejado plano para un aprovechamiento activo de fotovoltaica.
- Zona de barbacoa con pérgola en el lado oeste.
- Suelo radiante y climatización adecuada para asegurar una climatización confortable.
- Casa domotizada.
- Se acumula aguas pluviales para el sistema de riego del jardín.
- vivienda energéticamente muy eficiente y estanca.
<<<< Back
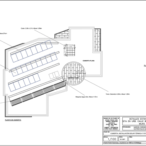
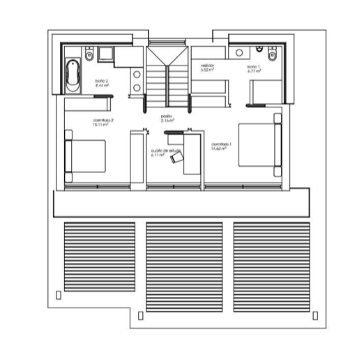
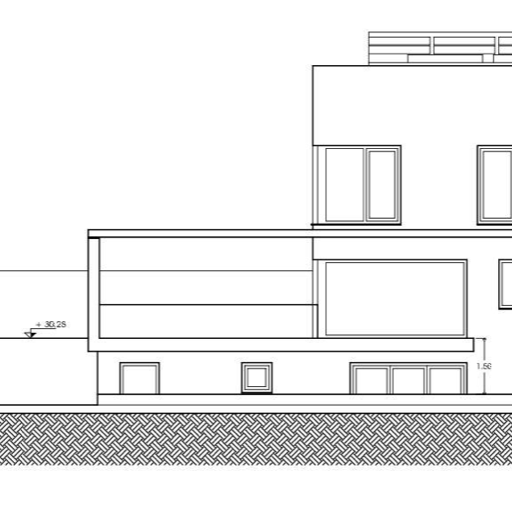
Villa "Sol y Viento"
Vivienda unifamiliar / primera “casa pasiva” con certificación en la Costa del Sol
Urbanización Buena Vista / Mijas
Terminación: 2014 / 2015
Superficie construida: 696m2
Particularidades de esta villa:
- Tejado plano grande para un aprovechamiento activo de la energía solar térmica y fotovoltaica
- Control de persianas automático mediante la inmótica KNX
- Enfriamiento nocturno en verano mediante empuje aerostático térmico
- Colector geotérmico intercalado para el precalentamiento o enfriamiento del aire del sistema de ventilación
- Sistema de aprovechamiento de aguas pluviales para el riego del jardín
PHPP necesidad de calor anual: 8,8 kWh/m2a
PHPP necesidad de enfriamiento anual: 5 kWh/m2a
PHPP necesidad de energía primaria: 78 kWh/m2a
Ensayo de presión-cambio de aire n50: 0,5 1/h
<<<< Back
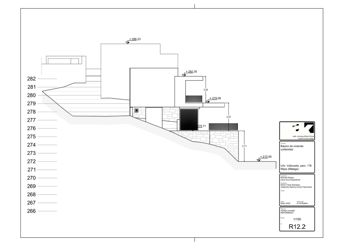
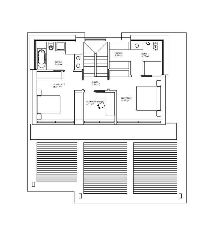
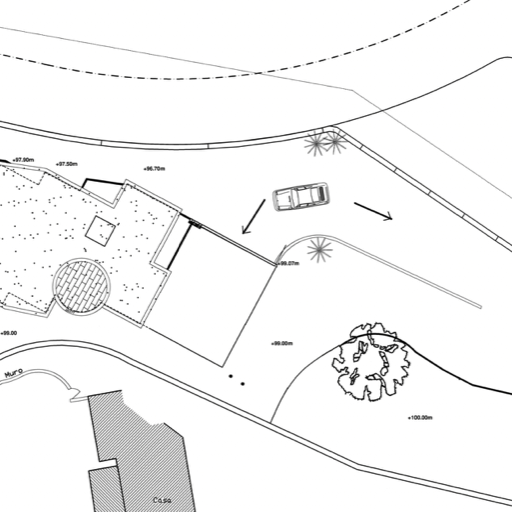
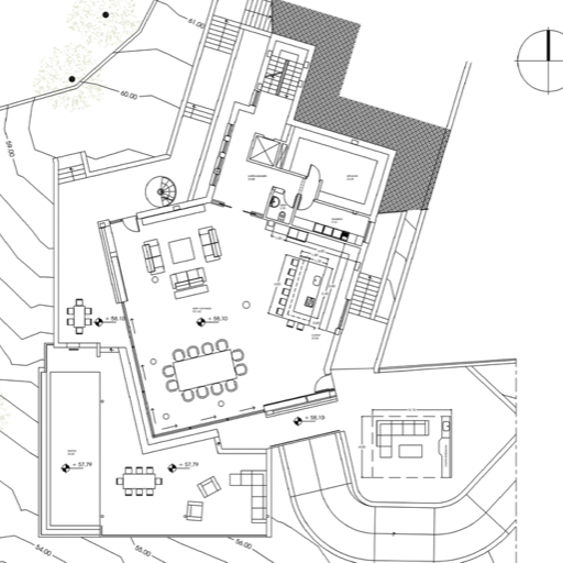
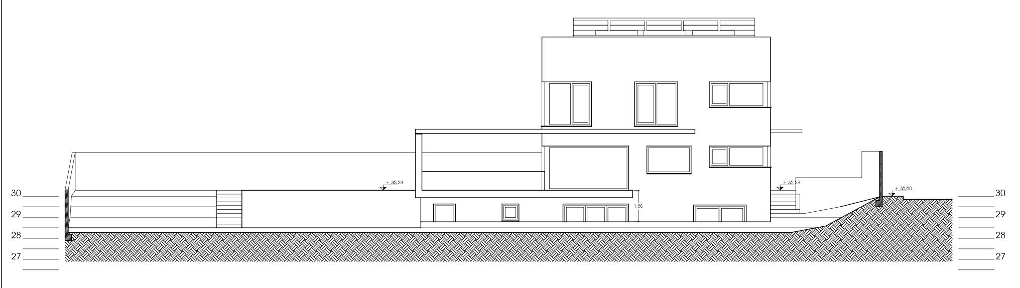
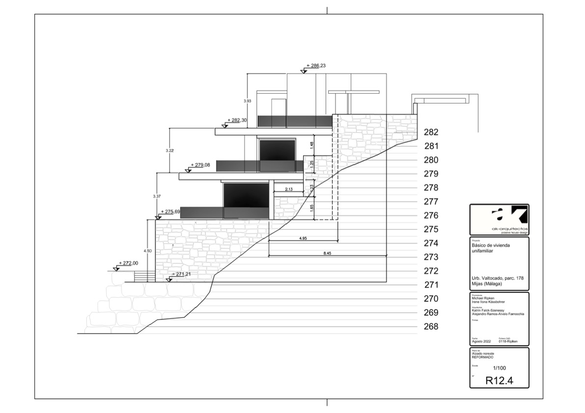
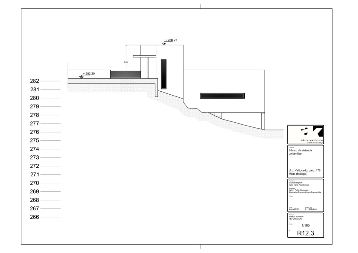
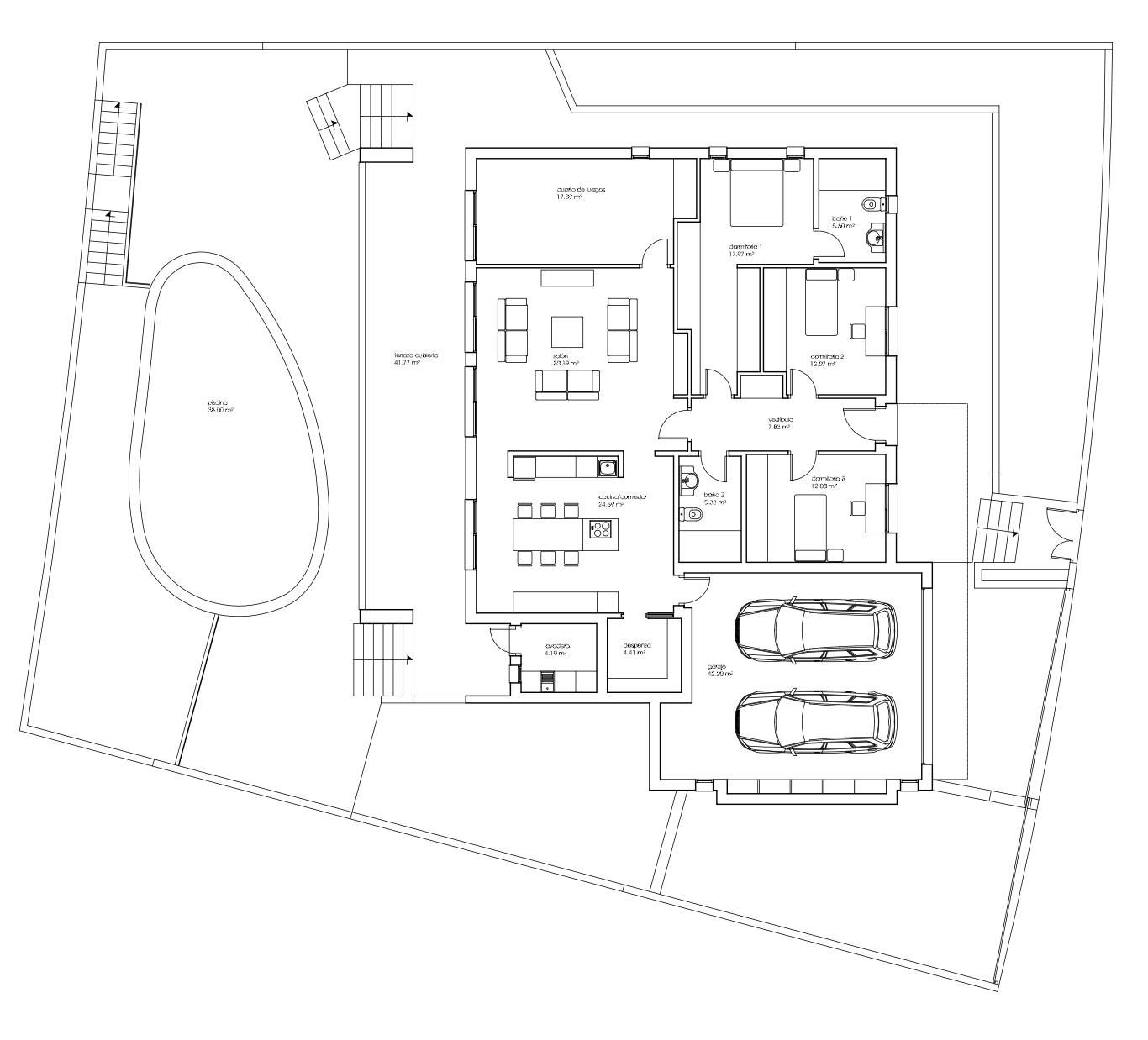
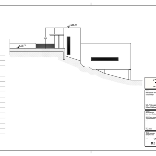
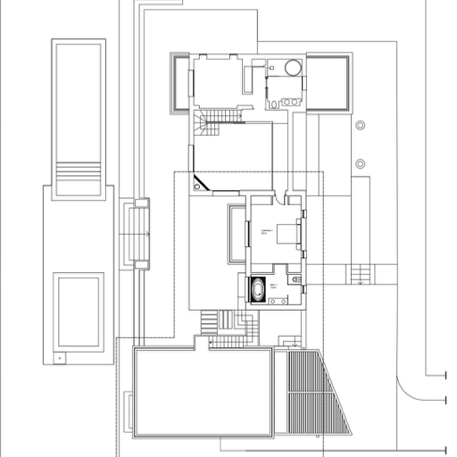
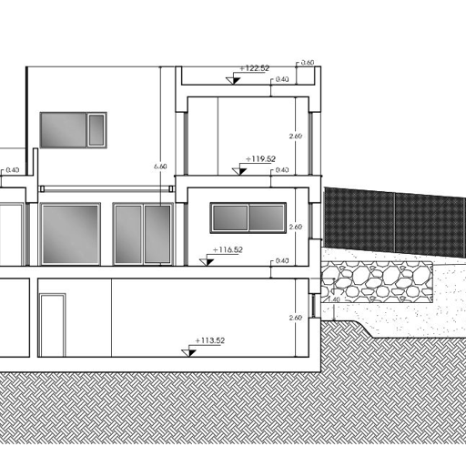
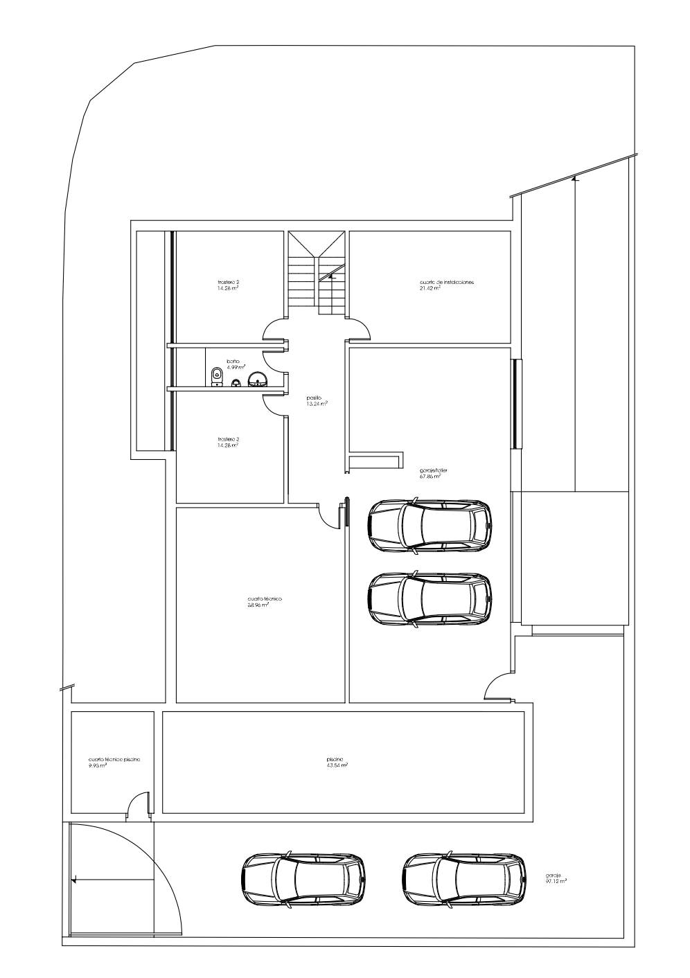
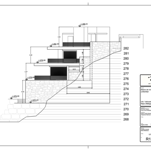
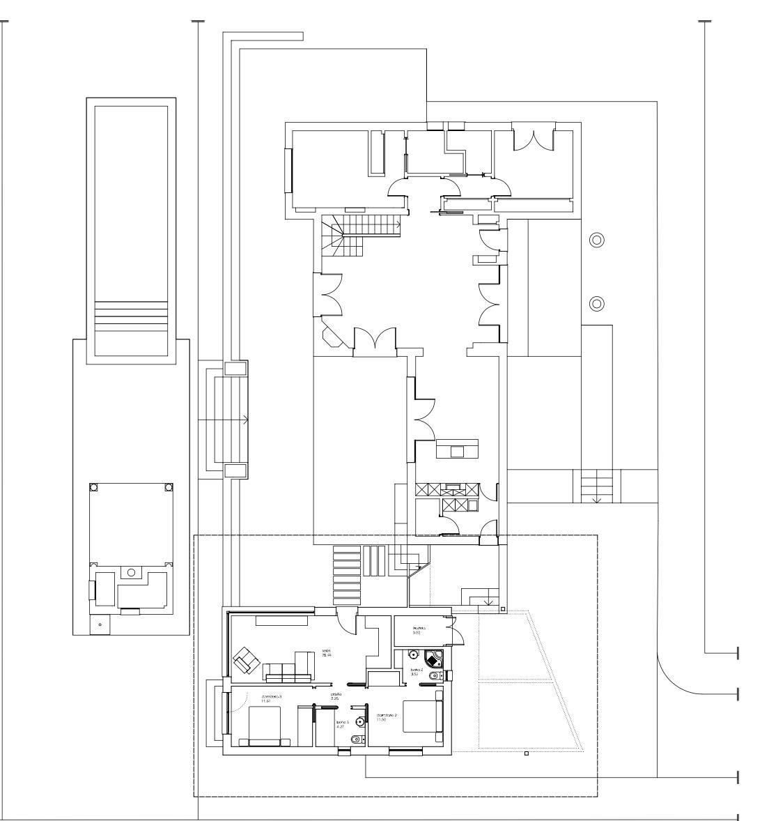
Villa Valtocado
Vivienda unifamiliar / casa pasiva
Urbanización Valtocado de Mijas
2021 (Proyecto con licencia), 2024 fin de obra
Superficie construida: 261m2 más souterrain
Ubicación: La casa pasiva está ubicada en la Urbanización Valtocado de Mijas en una ladera con mucho viento a una altura de 282m por encima del nivel del mar. Tiene maravillosas vistas, piscina interior y una piscinita larga como “barandilla horizontal” en la terraza de la planta baja.
<<<< Back
Villa "marYpinos"
"Passivhaus & Fengshui" Vivienda unifamiliar,
urbanización La Cortijera, La Cala de Mijas
2020 (Proyecto con licencia), 2025 fin de obra
Superficie construida: 295,80m2 incl. souterrain
Esta casa independiente se encuentra al borde de una parcela verde con muchos pinos. Tiene una ubicación excelente con vistas a la zona verde y al mar, y está a poca distancia a pie del pueblo La Cala de Mijas.
Características especiales de la casa:
- La casa cumple todos los criterios de casa pasiva, la certificación oficial externa de casa pasiva está en trámite.
- Las esquinas redondeadas en el exterior y el interior crean un cálido «ambiente ibicenco».
- La casa cumple diversas directrices de Feng Shui y ha sido diseñada teniendo esto en cuenta.
- Se han incrustado piedras curativas simbólicas en la losa de cimentación.
- La casa cuenta con un sistema compuesto de aislamiento térmico y ventanas de alta calidad.
- En la cubierta hay una instalación fotovoltaica de 5,8 kWp.
- La casa tiene un conducto interno para tirar la ropa sucia.
- La piscina es una piscina de sal.
- Se ha instalado un sistema de ventilación central de la marca Zehnder.
<<<< Back
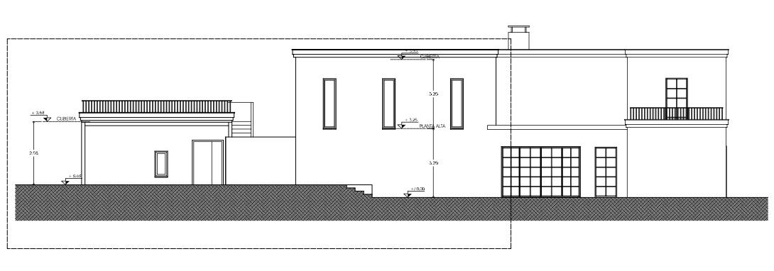
Villa ByM
Vivienda unifamiliar / vivienda de eficiencia energética elevada
Urb. Torreguadiaro, San Roque
2023 (Proyecto con licencia), 2025 en obra
Superficie construida: 961m2
Esa vivienda unifamiliar de 5 plantas escalonadas con maravillosas vistas hacia Gibraltar se encuentra en una parcela con inclinación elevada en la Urb. Torreguadiaro. La vivienda es moderna, tiene su tecnología de casa bastante elevada, sistema de ventilación centralizado, sistema centralizado de aspiradora, climatización con suelo radiante, un ascensor que conecta las 5 plantas, un garaje enorme para 4 coches y piscina salada con cubierta.
<<<< Back
Casa AyD
Vivienda unifamiliar / casa pasiva urbanización Alhaurin de la Torre 2019/2020 (Obra terminada) Superficie construida: 157m2 más sótano
"Passivhaus" Vivienda unifamiliar
Urbanización Alhaurin de la Torre
2020 (Proyecto con licencia), 2022 fin de obra
Superficie construida: 57m2 más sótano
La casa consta de una planta baja de acceso con salón, comedor, cocina y un dormitorio de visitantes, de una planta alta con los tres dormitorios y de un sótano grande con posibilidades de un taller, estudio y zona para jugar. Especial de esa casa es su patio interior que forma el centro de la casa.
<<<< Back
Casa EyC
Vivienda unifamiliar
Urb. La Alcaidesa, La Linea de la Concepción
2021 (Proyecto con licencia), 2023 fin de obra
Superficie construida: 250m2
Esa vivienda unifamiliar se encuentra en una parcela con vistas maravillosas hacia el mar. Es del estilo “Ibiza” y tiene mucho encanto por las esquinas redondeadas en toda la casa, dentro y afuera. Tiene sistema de ventilación centralizado.
<<<< Back
Villa "Sunnyside"
Vivienda unifamiliar
Urb. Retamar en Benalmádena
2024 (Proyecto con licencia), 2025 en obra
Superficie construida: 180m2 más sótano
Esta vivienda consta de dos plantas más sótano, una piscina, garaje y unas vistas maravillosas hacia el mar. Está planificada con fachada ventilada, tiene un sistema de ventilación centralizado, suelo radiante, fotovoltaica, agua salada de la piscina y consta de una pergola grande hacia sur.
<<<< Back
<<<< Back
Poolhouse / Chiringuito Jyl
Vivienda unifamiliar
Urb. Colina del Mar, Calle México en Torreguadiaro
2022/2023 (Proyecto con licencia)
Superficie construida: 155m2 más semisótano
Nuestros clientes desearon construir un “Poolhouse” con techo de paja, una piscina grande y querían añadir un garaje como ampliación a su vivienda ya existente.
<<<< Back
Ampliación GyL - Extension
Vivienda unifamiliar
Calle Laurel en Sotogrande de San Roque
2022 (Proyectocon licencia), 2024 fin de obra
Superficie construida: 123m2
Nuestros clientes desearon añadir una casa de visitantes con acceso independiente. Además querían añadir una planta por encima de la parte de la cocina ya existente para dar espacio para un dormitorio mas con propio baño.
<<<< Back
Casa VyN
Vivienda unifamiliar / casa pasiva Salvador Allende en Armilla 2019/2020 (Obra terminada) Superficie construida: 135m2
Esa casa adosada se encuentra en Armilla, una región de la provincia de Granada, y está planificada según el estándar Passivhaus. Es estrecha pero eficiente y muy bien distribuida. La casa consta de una planta baja con un garaje, un comedor con cocina, vestíbulo, una planta alta con 2,5 dormitorios y una terraza en la cubierta.
<<<< Back
Villa NyE
Vivienda unifamiliar
En Sotogrande de San Roque
2022/2023 (Proyecto con licencia)
Esa vivienda consta de un diseño muy bonito, con tres volúmenes que están conectados entre ellos. La parte principal tiene unas ventanales grandes con cubierta inclinada y techo de doble planta. La parcela tiene una piscina grande y una piscina alargada que sirve como barandilla en horizontal y conecta la parte del semisótano por un puente.
<<<< Back
Reformation SyL
Vivienda unifamiliar
Urb. Colina del Mar, Calle Buenos Aires en Torreguadiaro
2022/2023 (Proyecto con licencia)
Superficie construida: 283 m2
En este caso se trata de una reforma interior. Abrimos la zona de salón y cocina hacia sur, cambiamos espacios y terrazas para conseguir más espació, más altura y más generosidad. Una parte de la vivienda recibe nuevas fachadas con ventanas grandes y nueva cubierta.
<<<< Back
Casa "Hem-Alonso"
Vivienda unifamiliar
urbanización Cortijo de la Luz
Otura (Granada)
2005 (Proyecto)
2006 (Final de obra)
Trabajo publicado en el número 404 de la revista Casa y jardín Jugando con las direccionales que plantea el terreno y su pronunciado desnivel, planteo la distribución de esta vivienda creando dos volúmenes muy señalados, articulados en la zona de acceso y escalera.
<<<< Back
<<<< Back
<<<< Back
Casa “Mingorance-Roldán"
Vivienda unifamiliar
Pulianas (Granada)
2014 (Proyecto)
En una urbanización de nueva creación, planteo esta vivienda teniendo en cuenta que la mejor orientación, vistas a Sierra Nevada y lindero a espacio público coinciden, obteniendo como resultado una vivienda con mucha luz y visuales.
<<<< Back
<<<< Back
Casa "El-Atabal"
Vivienda unifamiliar
urbanización El Atabal (Málaga)
2013 (Anteproyecto)
En una parcela de forma irregular, con una fuerte pendiente descendente, se plantea esta vivienda con la clara intención de aprovechar al máximo las vistas hacia el mar. Con acceso rodado y peatonal desde la parte superior, se escalonan y giran los volúmenes que albergan las distintas zonas de la vivienda buscando las curvas de nivel, articulándose y conjugando su geometría unos con otros, conectados en vertical por la escalera y el ascensor.
<<<< Back

